Home About Us Our Designs Projects Contact Us  
      
Queens Road Project - Private Residence
     
Click to Enlarge Click to Enlarge
Click to Enlarge
Click to Enlarge Click to Enlarge
Click to Enlarge
   
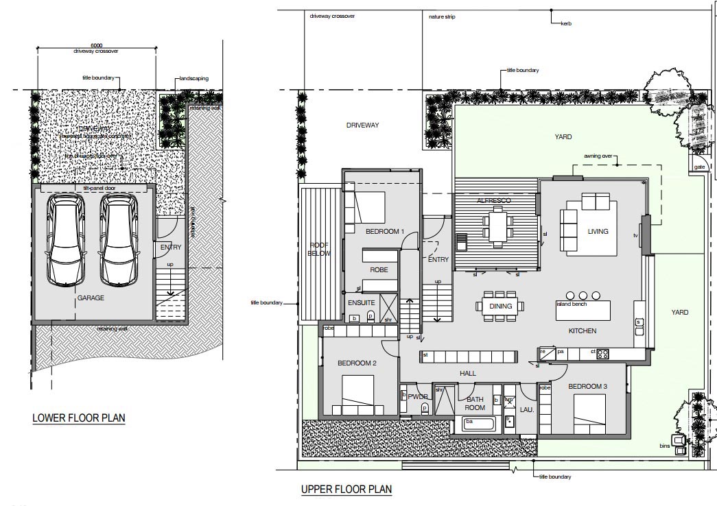
Kimberley Homes will be constructing this private residence in a future subdivision overlooking the Merri River in Queens Road. The residence & subdivision will be located next to the approved 6-Lot subdivision in the Queens Road project shown below.

Plans for the 3 Lot subdivision have been submitted to Council are waiting approval. Expressions of interest to purchase the remaining 2 lots as vacant land or as House & Land packages are welcome.
Please call our office on (03) 5561 2976.

Click to Enlarge
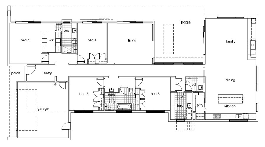
Floor Plan
     
Queens Road Project - Townhouses
Queens Road Project

Kimberley Homes currently have approved plans and permits for a 6-Lot subdivision overlooking the Merri River in Queens Road, Warrnambool.

The first 2 Units have been designed and are ready for construction.
Expressions of interest to purchase the fully constructed units are welcome.
Please call our office on (03) 5561 2976 for further details.


Kimberley Homes will also be designing and building on the remaining 4 generous sized Lots and will be selling them as house and land packages. Please feel free to contact our office to express interest in purchasing and customising the future designs to suit your needs.

As a local builder in the Warrnambool area, Kimberley Homes offers you individual, custom made designs to suit your lifestyle and your budget. We have no set prices on our plans, meaning we have no hidden extra costs. Each new home is quoted to suit your budget!



Click to Enlarge Click to Enlarge
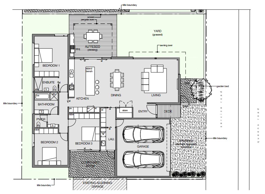
  Unit 1 - Floor Plans    Unit 2 - Floor Plan
Click to Enlarge
 Subdivision Layout
   
Northpoint Hotel Project  
Northpoint Hotel Project Northpoint Hotel Project


Kimberley Constructions are currently building the new Northpoint Hotel at the Warrnambool Centro Shopping centre.
Existing Duncan's Bottleshop will be transformed into a Bistro, Bar, TAB, Drivethru Coffee & Bottleshop.
Currently, local trades and suppliers are encouraged to supply quotes for all aspects of the building.
Please visit www.northpointhotel.com.au for more details.

Kimberley Homes - 82 Mortlake Road Warrnambool, Victoria 3280
Phone: (03) 5561 2976 - Mobile: 0438 529 515 - Fax: (03) 5561 4600
Registration Number DB-U 6962 Domestic Builder Unlimited.
Registration Number CB-L 32265 Commercial Builder- Limited LIMITED TO: Low Rise
ACN : 063 289 654    ABN: 71 163 854 536
Website by Mark Lucas
Stat Counter